BOGONIA 28 mm 6,12 m x 3,20 m Biancasa rustique

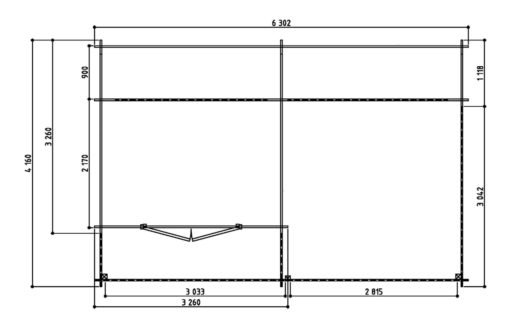
Dimensions fondations : 6,11 m x 4,07 m

  • Surface au sol : 9,42 m²
  • Hauteurs murs : 2,08 m
  • Hauteur faitage : 3,49 m
  • Epaisseur madriers : 28 mm
  • Débords de toit : avant : 110 cm, cotés : 12 cm
  • Menuiseries : 1 porte double vitrée de 174 x 183 cm
  • Pente : 42 °
  • Couverture en shingle (rouge, vert, brun ou noir)

Prix avec couverture shingle inclus.

A partir de 4349 € ttc

Options :

  • Installation : nous consulter au 04.78.55.58.72
  • Traitement autoclave
  • Plancher avec lambourdes traitées autoclave
  • Poutres de fondation imprégnées
  • Gouttières PVC
  • Bûcher de 3 x 1 m