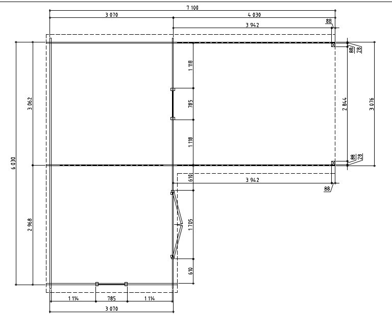
NOVIA 28 mm 6,03 m x 7,10 m Biancasa moderne