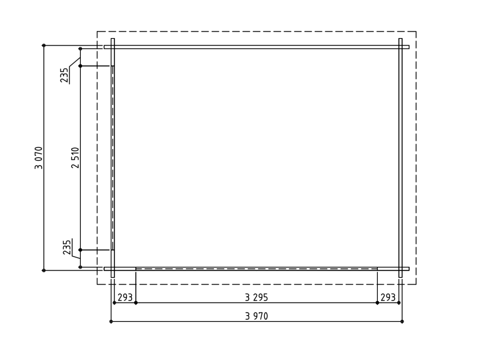
XAVIRA 45 mm 3,97 m x 3,07 m Biancasa robuste