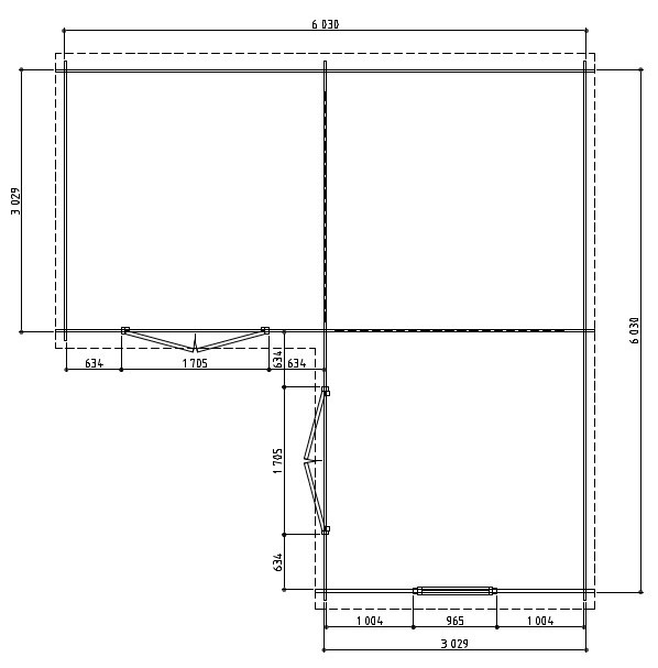
ZORA 28 mm 6,03 m x 6,03 m Biancasa moderne